客服/招商熱線:0512-63786666
電話:0512-63786666
網址:www.wuximingxin.com
工廠直營店地址:蘇州市吳江區震澤開發區318國道110公里處(頔塘路1766號)
電話:0512-63786891
蘇州園區紅星美凱龍直營店
地址:蘇州工業園區清揚路1號紅星美凱龍五樓
電話:6293 1027
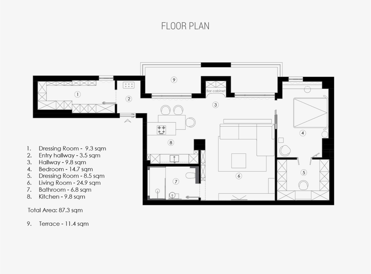
這個公寓項目采用輕盈奢華的白色內飾,配有鏡子、金屬和光滑的大理石裝飾,是一個充滿精致裝飾品和引人注目的現代線條藝術的高端住宅。香檳金飾面為冰白色背景增添了一絲溫暖,而淺灰色的耳語則引入了微妙的陰影。奢華的浴室設計在美妙的粉紅色色調墻下進入色彩領域,其中的甜美被沉重的黑色元素抵消。查找包含在家庭參觀結束時的完整平面圖。

1 |
三個倒拱形在白色客廳上方形成了一個獨特的現代吊燈,增添了香檳金的光澤。

2 |
一個設計師臺燈增加了大氣向上照明到電視墻,突出凹槽石膏鑲板墻。

3 |
一條鏡面條穿過天花板平面,優雅地反射和加倍美麗的吊燈特征。

4 |
帶框的現代線條藝術被電視墻層層支撐,增添了精致的文化元素。

5 |
這件藝術品優雅地懸掛在大理石底座上,與現代線性電視單元形成了一個互鎖的部分。

6 |
在紋理石膏鑲板上切出一個槽,以無縫地容納浮動電視架。

7 |
整體大理石板在豪華休息室空間的中央形成了一張光滑的方形咖啡桌。

8 |
鋒利的大理石咖啡桌柔軟地鋪在帶有巧妙鑲邊的地毯設計上。煙灰色散布靠墊為淺色 L 形沙發設計增添了色調。

9 |
一扇帶棱紋的玻璃門部分地遮住了房間后面儲藏豐富的酒吧柜的內容,只露出誘人的一瞥。

10 |
在這里,我們可以看到細長的鏡面天花板如何在客廳周圍形成一個完整的拱形,垂直面板在每一側反射房間。

11 |
圍繞客廳門框制作了一個定制的展示架單元。LED 書架燈展示了有趣的設計對象和適度的書籍收藏。

12 |
別致的白色沙發桌在休息區和通往臥室的開放式走道之間營造出流線型的視覺分隔。

13 |
同心面板成型為純白色墻壁增添了大面積的趣味,同時還帶有一絲新古典主義的優雅。

14 |
沙發桌的棱紋面與帶凹槽的石膏板電視墻以及對面墻上的玻璃飲料柜形成了緊密的紋理聯系。

15 |
休息室直通豪華廚房空間,廚房島臺與美麗的懸臂餐桌表面融為一體。香檳金現代餐椅與奢華的白色絎縫靠背交織在一起。

16 |
香檳色的光澤從豪華的廚房抽油煙機中滴落下來,干凈的白色爐灶位于廚房島臺面的中央。

17 |
廚房水槽上方的酒杯儲物架表面閃爍著相配的香檳色光澤。

18 |
黑色大理石閥門塑造了一個極其獨特的水龍頭。

19 |
板條天花板為廚房餐廳空間帶來羅紋紋理主題,而令人驚嘆的后擋板則借鑒了大理石元素。

20 |
在臥室內,一張軟墊床、大面積的地毯和厚厚的窗簾營造出寧靜祥和的氛圍。

21 |
一盞獨特的拉桿落地燈取代了其中一個床頭柜。

22 |
細長的無框鏡子使迷人的細長落地燈的效果和它的光芒加倍。

23 |
落地燈精致的金色拉桿與定制桌面設計下方的多個金色支撐桿相得益彰。

24 |
面板成型在豪華的白色臥室周圍放置裝飾框架。

25 |
千鳥格軟墊臥室椅子與藝術展示相結合,獨特的自發光大理石底座展示了經典的半身像。

26 |
三個全身鏡反射出一件有趣的墻壁藝術。兩個賽道形狀的鏡子還兼作臥室步入式衣柜/更衣室的入口 門。板條天花板標志著區域的變化。

27 |
線條藝術在進入臥室時形成一個焦點,并由一盞低垂的床頭吊燈方便地照亮。

28 |
臥室吊墜還照亮了一張金色的小邊桌。

29 |
現代吊墜的香檳金色飾面和管狀玻璃固定裝置與床頭板另一側的落地燈相協調,而不是傳統的孿生。

30 |
千鳥格內飾在梳妝凳和臥室椅子之間創造了一個共同的主題。

31 |
帶翼的床頭板設計、柔軟的灰色羽絨被和銀灰色羊毛床單營造出舒適美感。

32 |
大片的白色大理石和雷鳴般的灰色紋理包裹著浴室。

33 |
令人印象深刻的淋浴區包括一張對比鮮明的黑色大理石邊桌,用于放置干凈的白色毛巾。精美的金色飾邊與淋浴屏的邊緣相得益彰。

34 |
迷人的粉紅色特色墻將視線吸引到梳妝區,堅固的黑色大理石底座支撐著獨特的底座水槽設計。

35 |
金色拉桿將迷你擱板靠近臉盆,用于放置必需的洗浴用品和芳香的蘆葦擴散器。

36 |
黑色馬桶平衡了底座盆設計的黑暗體積。

37 |
公寓平面圖顯示了一個寬敞的更衣室,面積為 9.3 平方米,位于入口走廊附近。我們還可以看到主臥室的三面鏡子可以進入私人更衣室,更衣室內襯壁櫥和化妝臺。
www.wuximingxin.com
地址:蘇州市吳江區震澤開發區318國

郵箱:
beijingbXXXX@163.com